Save
Ask
Tour
Hide
$2,450,000
4 Days On Site
227 7th Avenue W 232Hendersonville, NC 28791
For Sale|Condominium|Active
2
Beds
3
Total Baths
2
Full Baths
1
Partial Bath
1,751
SqFt
$1,399
/SqFt
2026
Built
Subdivision:
The Cedars
County:
Henderson
Call Now: 828-247-7109
Is this the listing for you? We can help make it yours.
828-247-7109


Save
Ask
Tour
Hide
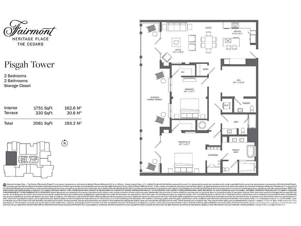
Luxury residential living comes to Downtown Hendersonville! Fairmont Heritage Place The Cedars is a stunning condo community with world-class amenities and services. This residence is the ultimate in luxury living, with designs by renowned designer Alison Antrobus. 2 bedrooms, 2.5 bathrooms plus den with 1751 sqft of living space, plus a double-sized terrace. 24x48 Italian porcelain floors and custom millwork and top of the line appliances. The residence is well suited for full time residency, or may be enrolled in short term rental programs. Live the Fairmont lifestyle, and enjoy many benefits across the Fairmont family of companies.
Save
Ask
Tour
Hide
Listing Snapshot
Price
$2,450,000
Days On Site
4 Days
Bedrooms
2
Inside Area (SqFt)
1,751 sqft
Total Baths
3
Full Baths
2
Partial Baths
1
Lot Size
N/A
Year Built
2026
MLS® Number
4336445
Status
Active
Property Tax
N/A
HOA/Condo/Coop Fees
$1,566 monthly
Sq Ft Source
N/A
Friends & Family
Recent Activity
| 4 days ago | Listing first seen on site | |
| 4 days ago | Listing updated with changes from the MLS® |
General Features
Garage
Yes
Garage Spaces
1
Parking
Assigned
Property Condition
New Construction
Property Sub Type
Condominium
Security
Security Service
Sewer
Public Sewer
SqFt Above
1751
SqFt Total
1751
Style
Other
Utilities
Cable Available
Zoning
CMU-CZD
Interior Features
Appliances
DishwasherDryerElectric OvenElectric Water HeaterMicrowaveWasher
Cooling
Central Air
Fireplace
Yes
Fireplace Features
Electric
Heating
Electric
Interior
Breakfast BarBuilt-in FeaturesElevatorKitchen IslandOpen FloorplanPantryStorageWalk-In Closet(s)Wet Bar
Laundry Features
Laundry ClosetMain Level
Spa
Yes
Save
Ask
Tour
Hide
Exterior Features
Construction Details
Stone Veneer
Exterior
Fire Pit
Lot Features
Views
Spa
Yes
View
CityMountain(s)
Waterview
CityMountain(s)
Community Features
Association Amenities
Dog Park
Association Dues
1566
Community Features
ClubhouseFitness CenterSidewalksStreet Lights
Financing Terms Available
Cash
HOA Fee Frequency
Monthly
Roads
AsphaltPaved
Schools
School District
Unknown
Elementary School
Bruce Drysdale
Middle School
Hendersonville
High School
Hendersonville
Listing courtesy of Zilbert Realty Group Inc [email protected]
Listings courtesy of Canopy MLS as distributed by MLS GRID. Based on information submitted to the MLS GRID as of {last_incremented_at}. All data is obtained from various sources and may not have been verified by broker or MLS GRID. Supplied Open House Information is subject to change without notice. All information should be independently reviewed and verified for accuracy. Properties may or may not be listed by the office/agent presenting the information. Some IDX listings have been excluded from this website. Properties displayed may be listed or sold by various participants in the MLS. ©2026 Canopy MLS.
The Digital Millennium Copyright Act of 1998, 17 U.S.C. § 512 (the “DMCA”) provides recourse for copyright owners who believe that material appearing on the Internet infringes their rights under U.S. copyright law. If you believe in good faith that any content or material made available in connection with our website or services infringes your copyright, you (or your agent) may send us a notice requesting that the content or material be removed, or access to it blocked. Notices must be sent in writing by email to [email protected]. “The DMCA requires that your notice of alleged copyright infringement include the following information: (1) description of the copyrighted work that is the subject of claimed infringement; (2) description of the alleged infringing content and information sufficient to permit us to locate the content; (3) contact information for you, including your address, telephone number and email address; (4) a statement by you that you have a good faith belief that the content in the manner complained of is not authorized by the copyright owner, or its agent, or by the operation of any law; (5) a statement by you, signed under penalty of perjury, that the information in the notification is accurate and that you have the authority to enforce the copyrights that are claimed to be infringed; and (6) a physical or electronic signature of the copyright owner or a person authorized to act on the copyright owner’s behalf. Failure to include all of the above information may result in the delay of the processing of your complaint.
Last checked - 2026-01-20 01:22 AM UTC
Listings courtesy of Canopy MLS as distributed by MLS GRID. Based on information submitted to the MLS GRID as of {last_incremented_at}. All data is obtained from various sources and may not have been verified by broker or MLS GRID. Supplied Open House Information is subject to change without notice. All information should be independently reviewed and verified for accuracy. Properties may or may not be listed by the office/agent presenting the information. Some IDX listings have been excluded from this website. Properties displayed may be listed or sold by various participants in the MLS. ©2026 Canopy MLS.
The Digital Millennium Copyright Act of 1998, 17 U.S.C. § 512 (the “DMCA”) provides recourse for copyright owners who believe that material appearing on the Internet infringes their rights under U.S. copyright law. If you believe in good faith that any content or material made available in connection with our website or services infringes your copyright, you (or your agent) may send us a notice requesting that the content or material be removed, or access to it blocked. Notices must be sent in writing by email to [email protected]. “The DMCA requires that your notice of alleged copyright infringement include the following information: (1) description of the copyrighted work that is the subject of claimed infringement; (2) description of the alleged infringing content and information sufficient to permit us to locate the content; (3) contact information for you, including your address, telephone number and email address; (4) a statement by you that you have a good faith belief that the content in the manner complained of is not authorized by the copyright owner, or its agent, or by the operation of any law; (5) a statement by you, signed under penalty of perjury, that the information in the notification is accurate and that you have the authority to enforce the copyrights that are claimed to be infringed; and (6) a physical or electronic signature of the copyright owner or a person authorized to act on the copyright owner’s behalf. Failure to include all of the above information may result in the delay of the processing of your complaint.
Last checked - 2026-01-20 01:22 AM UTC
Neighborhood & Commute
Source: Walkscore
Save
Ask
Tour
Hide

Did you know? You can invite friends and family to your search. They can join your search, rate and discuss listings with you.